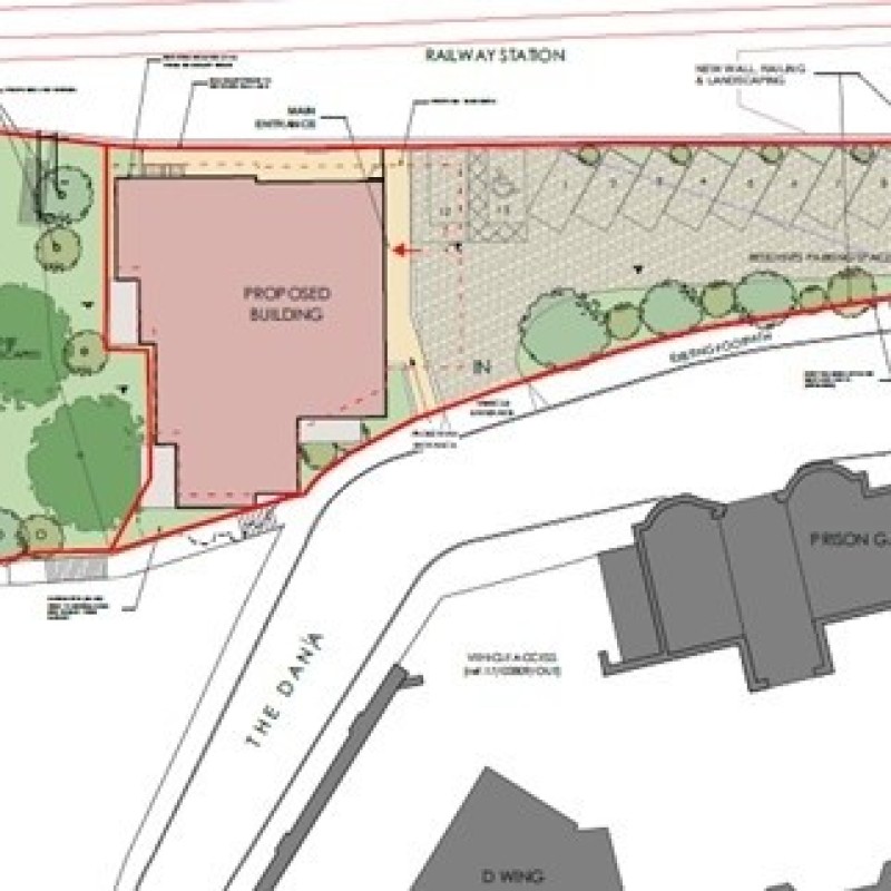
The Former Visitor Centre And Car Park

Howard Street, Shrewsbury, Shropshire

£500,000

Reference:
1480
Type:
Residential
Tenure:
Freehold
Status:
Sold
Size:
0.39 Acres

Map

Please note: Locations and addresses are approximate and may not be as accurate as expected.

Planning

Application reference: 18/03206/FUL

Planning status: Detailed Planning Permission

Planning authority: Shropshire Council

Application details:

Detailed Planning Permission has been granted for the development of 9 large apartments with associated car parking adjoining. No affordable housing.

LandHawk is a comprehensive database of recent and historical planning applications. Designed to deliver powerful, detailed search with greater accuracy and control.

Get instant insight into the status of any area within the country, with a reliable data source that combines 99% of all available planning application data across UK local authorities.

We have exclusively partnered up with LandHawk so you can immediately understand the planning situation of the empty property or site you are looking at. When you sign up and contacted by LandHawk, please say you singed up via LandAttic and you will immediately receive an extended 60 day free trial!

LandHawk Logo

Ownership

LandHawk hosts, manages and displays a digitised version of every land parcel in the UK, as produced by His Majesty's Land Registry (HMLR) and, in the case of Scotland, Registers of Scotland using the INSPIRE data. Each land parcel contains the land registry title deed number and, in the cases of commercial and overseas ownership, directly accessible information for the ownership of that land parcel.

We have exclusively partnered up with LandHawk so you can immediately investigate the ownership of an empty property or derelict site you are looking at. When you sign up and contacted by LandHawk, please say you singed up via LandAttic and you will immediately receive an extended 60 day free trial!

LandHawk Logo